东庄水利工程围堰智能碾压项目

陕西泾河东庄水利枢纽工程胶结砂砾石围堰智能碾压项目是“北斗水利综合应用示范”的案例之一,着力于探索北斗在水利工程建设信息化层面的应用,解决水利工程建设质量无 法精准控制、管理及组织方法相对落后等痛点,同时帮助水利工程建设效率实现提升。
案例背景
泾河东庄水利枢纽工程是国务院批复的《黄河流域综合规划》、《渭河流域重点治理规划》和国家发改委批准的《关中—天水经济区发展规划》中的重要防洪骨干工程和大型水源工程。是国务院“十三五”确定加快建设的172项重大水利工程之一,也是国家发改委、水利部确定的2016年需要统筹加快项目前期工作进度力争开工的11个项目之一。
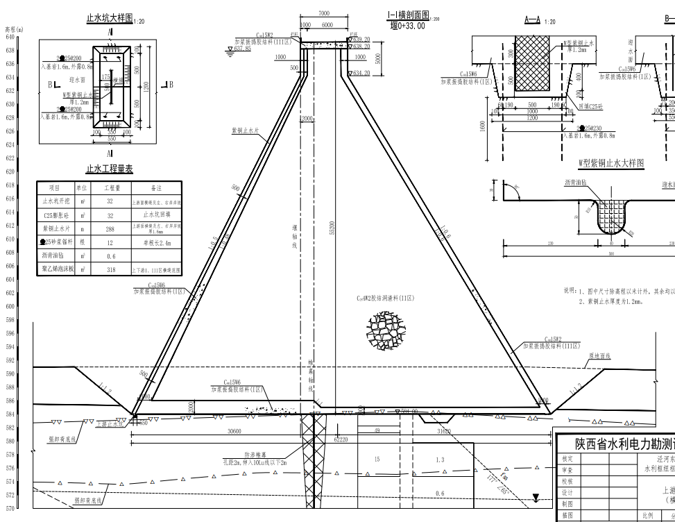
工程上游围堰为胶结砂砾石围堰,堰前水位637.85m,堰顶高程639.20m。围堰建基面座落于强卸荷底线,建基面高程584m,最大堰高55.2m。围堰堰顶宽7m,上游面边坡634.2m以上垂直,以下1:0.5,下游坡坡比634.20以上垂直,以下1:0.6,堰顶长72.8m。
东庄围堰设计图
东庄水库上游胶结砂砾石围堰采用碾压施工工艺,上游面防渗层采用加浆振捣方案。胶结砂砾石堤坝是一种具有安全经济、漫顶不溃、环境友好等优点的新坝型。但由于胶结砂砾石具有骨料级配变化大,用水量波动大、强度离散等特点,施工过程中若措施不当或控制不严,会产生质量问题和缺陷,给大坝安全带来隐患。研制建立东庄上游围堰胶结洞渣料数字拌和与碾压施工质量数字监控系统,对施工全过程进行实时、动态监控,保障拌和、碾压施工过程符合施工规范和工艺要求,发现问题及时预警,是保证胶结砂砾石施工质量和工程安全的关键。
东庄水利工程项目在围堰阶段采用了由中国水科院和华测导航联合设计研发的大坝碾压施工质量智能管控系统。通过北斗高精度卫星定位技术、传感器技术、网络技术等多种技术的融合,对整个压实施工过程中的多个系统信息进行智能整合,从而为操作手提供高效、高质、快速的压实作业引导,为业主及监理提供强大的一线工程信息管理。

系统关键部件
该系统基于B/S 结构,可以分为数据采集端、服务器端和成果显示端三大模块,安装在压路机上的数据采集端,将压实震动数据和定位数据采集后,通过手机网络实时发送到服务器,在服务器上完成数据处理,管理者使用浏览器登录服务器地址或通过手机APP,可实时在线上通过施工质量智能管控平台获取监控结果。
系统
关键部件
线上管理平台

相较传统施工方式,该系统符合水利部提出的“数字水利”“智慧水利”的现代工程管理理念,能够采用信息化手段对现有的工程建设管理模式进行改造,提高管理效率,提升管理形象,推动参建各方工程质量和安全管理水平提升。
项目实施
东庄水利工程项目围堰位于泾河主河道上,施工面积狭小,两侧山体高且陡峭,使施工区域卫星信号遮挡严重,定位条件差,传统测量RTK流动站在围堰区域无法固定,为智能碾压管理系统的应用增加很大困难。
为保证现场信号质量,本项目选择通过电台广播发送基站数据,基站选址在距离施工现场近、且无遮挡位置,最大程度确保共星条件。同时采用支持北斗三代的全星座接收机和卫星天线,以使可供使用的卫星更多。
应用效果
项目通过优选支持北斗三代的全星座接收机和卫星天线,实现了高陡峡谷区的快速定位,采用电台广播方式,发送基站数据,有效保障了现场信号质量,实现了高陡峡谷区碾压过程的高质量、高效率和高准确率全过程监控,保障了围堰施工质量。

7月16日,受泾河支流马莲河等河流发生的超警以上洪水影响,泾河下游河水暴涨。10时20分,洪水达到峰值,入库流量3900立方米每秒,围堰正常发挥作用,通过上游围堰拦蓄,导流洞下泄,出库流量3020立方米每秒,削减流量880立方米每秒,15:30堰前水位回落至605米高程,泾河二号洪水顺利过流。



应用价值
在水利工程建设层面,一方面,随着工程施工质量得到越来越多重视,要求越来越严格,现行方法显露出质量溯源数据不足、质量监管方法不够等短板。另一方面,不少工程施工企业存在管理效率低下,管理成本高的问题,施工流程组织滞后,跟不上新技术、新工艺发展。
针对于以上情况,基于北斗高精度定位技术的施工质量管控方案能够通过信息化方式实现更清晰、更便捷的工程实施引导、工程质量把控及工程成本控制,对业主、监理,亦或施工单位都具有经济价值和社会价值。